Pevnostní objekty
-
BartH8
- Sponzor fóra
- Příspěvky: 659
- Registrován: 16 dub 2018, 18:16
Re: Pevnostní objekty
http://www.betontks.cz/sites/default/fi ... 3-28_0.pdf
Tady je to dobře popsané. I o té základové skořápce je tam psáno. Byl to vlastně jen nějaký podklad 6 cm vysoký.
Tady je to dobře popsané. I o té základové skořápce je tam psáno. Byl to vlastně jen nějaký podklad 6 cm vysoký.
Sláma u kravína,
herojom srala.
herojom srala.
-
crusader_cz
- Nováček
- Příspěvky: 9
- Registrován: 17 dub 2019, 06:35
Re: Pevnostní objekty
Nejsou všechny monoblok. U některých srubů s velkou kubaturou betonu (především u dělostřeleckých srubů) je dilatační (dělicí) spára, neboli byli betonovány ve dvou částech.
Jen by to v téhle diskuzi chtělo trochu upřesnit terminologii. Opevnění se dělí na lehké opevnění (malé objekty vz.36 a vz.37 (tzv. řopíky) a na těžké opevnění neboli sruby a tvrze. Tvrz je seskupeni několika srubů (pěchotních a dělostřeleckých) spojených podzemím, ve kterém jsou sklady, kasárna, velitelství tvrze...). Jednotlivé těžké objekty jsou stavěné v různých odolnostech tzv. arab a říman. Arabové jsou těžké objekty odolnosti 1 a 2 (arabské číslice, proto arab). Jedná se o objekty na hřebenech hor (hlavně Orlické hory), kde se nepředpokládalo použití dělostřelectva nepřítelem. Jsou to takové větší řopíky. Jako římany označujeme objekty vyšší odolnosti I-IV. Samostatné pěchotní sruby mohou být odolnosti I-III, tvrzové objekty (pěchotní i dělostřelecké) mají nejvyšší odolnost IV.
Tvrze se stavěly (nebo plánovaly) jen na severní hranici, na jižní Moravě se s nimi nepočítalo. Na jihu měly být jen pěchotní sruby v budoucnu podporované izolovanými dělostřeleckými sruby (žádný z IDS nikdy nebyl postaven)
Jen by to v téhle diskuzi chtělo trochu upřesnit terminologii. Opevnění se dělí na lehké opevnění (malé objekty vz.36 a vz.37 (tzv. řopíky) a na těžké opevnění neboli sruby a tvrze. Tvrz je seskupeni několika srubů (pěchotních a dělostřeleckých) spojených podzemím, ve kterém jsou sklady, kasárna, velitelství tvrze...). Jednotlivé těžké objekty jsou stavěné v různých odolnostech tzv. arab a říman. Arabové jsou těžké objekty odolnosti 1 a 2 (arabské číslice, proto arab). Jedná se o objekty na hřebenech hor (hlavně Orlické hory), kde se nepředpokládalo použití dělostřelectva nepřítelem. Jsou to takové větší řopíky. Jako římany označujeme objekty vyšší odolnosti I-IV. Samostatné pěchotní sruby mohou být odolnosti I-III, tvrzové objekty (pěchotní i dělostřelecké) mají nejvyšší odolnost IV.
Tvrze se stavěly (nebo plánovaly) jen na severní hranici, na jižní Moravě se s nimi nepočítalo. Na jihu měly být jen pěchotní sruby v budoucnu podporované izolovanými dělostřeleckými sruby (žádný z IDS nikdy nebyl postaven)
-
crusader_cz
- Nováček
- Příspěvky: 9
- Registrován: 17 dub 2019, 06:35
Re: Pevnostní objekty
No a k těm základovým deskám, podle mě jsou u těžkých objektů základové desky rozhodně silnější, než těch 6 cm. Když se zajedete podívat třeba na Stachelberg (Babí) u Trutnova, tak tam minimálně dvě základové desky můžete vidět. A pochybuju, že mají jen 6 cm. Podle mě těch 6 cm odpovídá spíš základové desce u řopíku.
-
biskup
- Redaktor
- Příspěvky: 55
- Registrován: 18 úno 2017, 06:27
Re: Pevnostní objekty
Řekl bych, že tady panuje milná představa o základech srubů. Uvědomte si že byly 2patrové tzn, že základ byl v určité hloubce a ne malé aby nedošlo k podstřelu. 6cm je tak nějaká vyrovnávací slupka na které se začínalo. U pěchotních srubů se dá vycházet z hloubky diamantového příkopu cca 3.5 m+ základová deska.
-
BartH8
- Sponzor fóra
- Příspěvky: 659
- Registrován: 16 dub 2018, 18:16
Re: Pevnostní objekty
Ropík neměl desku ale... Teď si nevzpomenu na název
takové ty betonové kostky v zemi... U boudy je jeden takovej rozdělanej... Základní deska jako taková nebyla u srubů potřeba. Jako základ sloužilo celé týlové patro. Ta skořápka sloužila k položení hydroizolace a snad vytvoření roviny na kterou se potom betonovalo? Dilatační spára byla převážně u dělostřeleckých srubů, vzhledem k jejich velikosti. Použití jinde mi není známo, ale o stavební část jsem se nějak hluboce nikdy nezajímal.
K jižní hranici. Původní plán předpokládal výpad do Rakouska z důvodu získání rovnější a lépe bránitelné hranice. Po aušlusu se od plánu upustilo a začalo se překotně budovat i na jihu. Z důvodů nižší nadmořské výšky, vysoké hladiny spodní vody a časové tísně se plánovalo vybudovat několik izolovaných dělostřeleckých srubů místo plnohodnotných tvrzí. Mělo jít o největší pevnostní objekty v republice. Na jejich realizaci nedošlo. Ono celkově se toho vybudovalo jen mizivé % výstavba byla totiž rozplánována asi do poloviny 50 let...
K jižní hranici. Původní plán předpokládal výpad do Rakouska z důvodu získání rovnější a lépe bránitelné hranice. Po aušlusu se od plánu upustilo a začalo se překotně budovat i na jihu. Z důvodů nižší nadmořské výšky, vysoké hladiny spodní vody a časové tísně se plánovalo vybudovat několik izolovaných dělostřeleckých srubů místo plnohodnotných tvrzí. Mělo jít o největší pevnostní objekty v republice. Na jejich realizaci nedošlo. Ono celkově se toho vybudovalo jen mizivé % výstavba byla totiž rozplánována asi do poloviny 50 let...
Sláma u kravína,
herojom srala.
herojom srala.
-
classix
- Senior redaktor
- Příspěvky: 3359
- Registrován: 17 úno 2017, 14:09
Re: Pevnostní objekty
Mimochodem je zajímavé že výstavba bunkrů se plánovala do 50 let, ale ekonomové poukazovali na to, že země do 40 roku vyhlasí platební neschopnost svých závazků tzn. bankrot.
Vy nejstě špión, voják, uvažujetě pokrokovo. Vy stě marxista!
- Aaron Goldstein
- Už nám nenapíše...
- Příspěvky: 10205
- Registrován: 10 úno 2017, 22:29
Re: Pevnostní objekty
Na druhou stranu byly vybudované objekty na jižní hranici využity k bránění hranice až někdy do roku 1964... Existuje o tom dokonce kniha "Utajena Obrana Zelezne Opony - Ceskoslovenske Opevneni 1945-1964"... (Na známém "místě" je k mání v PDF formátu) ...
Ke koupi tady...
Ke koupi tady...
Že jsem paranoidní ještě neznamená, že po mě nejdou...
-
crusader_cz
- Nováček
- Příspěvky: 9
- Registrován: 17 dub 2019, 06:35
Re: Pevnostní objekty
Základové desky neboli skořápky se běžně dělaly i u řopíků, jeden z mnoha nedodělaných, tenhle na N1 http://ropiky.net/dbase_objekt.php?id=1075725333
i tady je silnější než 6cm, další na K3 http://ropiky.net/dbase_objekt.php?id=1075725047, další na K3 pro lomený objekt, která byla pěkná než ji někdo rozmlátil http://ropiky.net/dbase_objekt.php?id=1075725049, další pěkná i s distančními sloupky na L1 http://ropiky.net/dbase_objekt.php?id=1075725085
No a pokud se u těžkých objektů dělaly skořápky jen 6cm tady je pár příkladů silnějších
T-S 69 http://www.opevneni.cz/pages/photoviewe ... =2&p=27934
T-S 62 http://www.opevneni.cz/pages/photoviewe ... =2&p=27375
T-S-40 http://www.opevneni.cz/pages/photoviewe ... =2&p=24411
i tady je silnější než 6cm, další na K3 http://ropiky.net/dbase_objekt.php?id=1075725047, další na K3 pro lomený objekt, která byla pěkná než ji někdo rozmlátil http://ropiky.net/dbase_objekt.php?id=1075725049, další pěkná i s distančními sloupky na L1 http://ropiky.net/dbase_objekt.php?id=1075725085
No a pokud se u těžkých objektů dělaly skořápky jen 6cm tady je pár příkladů silnějších
T-S 69 http://www.opevneni.cz/pages/photoviewe ... =2&p=27934
T-S 62 http://www.opevneni.cz/pages/photoviewe ... =2&p=27375
T-S-40 http://www.opevneni.cz/pages/photoviewe ... =2&p=24411
-
IgorT
- Redaktor - závislák :-)
- Příspěvky: 9259
- Registrován: 01 úno 2017, 10:55
Re: Pevnostní objekty
Fotka ROPíka zospodu, základňa vyzerá byť podstatne hrubšia, ako 6 cm. Bunkre v okolí Bratislavy som nafotil a uverejnil na Palbe, pre prípadných záujemcov:
http://www.palba.cz/viewforum.php?f=37
-
IgorT
- Redaktor - závislák :-)
- Příspěvky: 9259
- Registrován: 01 úno 2017, 10:55
Re: Pevnostní objekty
:sipka:
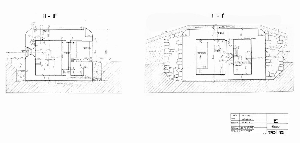
Našiel som výkres - 30 cm, ak dobre vidím!
Našiel som výkres - 30 cm, ak dobre vidím!
- jura-p
- Sponzor fóra
- Příspěvky: 3275
- Registrován: 07 úno 2017, 19:46
Re: Pevnostní objekty
U Znojma držela armáda opevnění až do devadesátých let.
-
BartH8
- Sponzor fóra
- Příspěvky: 659
- Registrován: 16 dub 2018, 18:16
Re: Pevnostní objekty
Třeba Hůrka byla uvolněná pro veřejnost relativně nedávno. 18. srpna 2008.
K těm základům. Ať 6 nebo 30 cm, určitě nemá funkci jako klasické základy. Každý objekt těžkého opevnění je svým způsobem originál. Na rozdíl od lehkého opevnění, které ŘOP setkalo jako Baťa cvičky. ( obrazně řečeno, protože i u LO jsou postaveny unikáty)
Ta základová skořepina bude možná u každého přizpůsobena podmínkám.
K těm základům. Ať 6 nebo 30 cm, určitě nemá funkci jako klasické základy. Každý objekt těžkého opevnění je svým způsobem originál. Na rozdíl od lehkého opevnění, které ŘOP setkalo jako Baťa cvičky. ( obrazně řečeno, protože i u LO jsou postaveny unikáty)
Ta základová skořepina bude možná u každého přizpůsobena podmínkám.
Sláma u kravína,
herojom srala.
herojom srala.
-
crusader_cz
- Nováček
- Příspěvky: 9
- Registrován: 17 dub 2019, 06:35
Re: Pevnostní objekty
Proto jsem rozporoval těch 6cm základové desky (neboli skořápky) u těžkého opevnění. Podle mě se těch 6cm týká LO (a to ještě ne všech, někde je víc, v některých případech se skořápka nedělala), navíc ten výkres co vložil IgorT to potvrzuje, skořápka tam je okótovaná 6cm (pod těmi 30cm). Těch 30 je podlaha neboli výška vymezovacího sloupku co vymezoval polohu bednění na skořápce.
U těžkého opevnění bude základová skořápka určitě víc a máš pravdu, pro každý objekt bude jiná.
Základová deska skutečně nejsou základy. Je to jen rovná vrstva betonu (i když je třeba vysoká 40 cm), na kterým se staví bednění. Dobře je to třeba vidět na základový desce tohoto řopíku z Q2 http://ropiky.net/dbase_objekt.php?id=1075725941. Ten měl být na svahu, navíc měl být lomený a hrozilo podstřelení objektu. Aby k tomu nedošlo, byly by stěny objektu protažené hluboko pod skořápku - vybrání pro stěny viz. obrázky 8, 9 a 10 (počítáno shora). Bohužel skořápka už není, zničil ji blízký kamenolom.
U těžkých objektů je to jednodušší, podstřelení nehrozí, celé spodní patro je pod zemí (kromě pár jednopatrových výjimek)
Pokud vím, např. tvrz Smolkov užívá AČR doteď.
U těžkého opevnění bude základová skořápka určitě víc a máš pravdu, pro každý objekt bude jiná.
Základová deska skutečně nejsou základy. Je to jen rovná vrstva betonu (i když je třeba vysoká 40 cm), na kterým se staví bednění. Dobře je to třeba vidět na základový desce tohoto řopíku z Q2 http://ropiky.net/dbase_objekt.php?id=1075725941. Ten měl být na svahu, navíc měl být lomený a hrozilo podstřelení objektu. Aby k tomu nedošlo, byly by stěny objektu protažené hluboko pod skořápku - vybrání pro stěny viz. obrázky 8, 9 a 10 (počítáno shora). Bohužel skořápka už není, zničil ji blízký kamenolom.
U těžkých objektů je to jednodušší, podstřelení nehrozí, celé spodní patro je pod zemí (kromě pár jednopatrových výjimek)
Pokud vím, např. tvrz Smolkov užívá AČR doteď.
-
crusader_cz
- Nováček
- Příspěvky: 9
- Registrován: 17 dub 2019, 06:35
Re: Pevnostní objekty
Ještě k těm základům. Klasické základy tam vlastně nejsou. Celková výška řopíku je 290 cm, z toho je 95 centimetrů pod zemí (takže asi třetina objektu je pod zemí). Takže vlastně řopík žádné základy nemá, je to taková krabice zakopaná do země. Pokud byl řopík na exponovaným místě, byly ještě stěny prodlouženy pod skořápku (a ty by se vlastně daly považovat za základy).
U těžkého objektu je to vlastně podobné, tam je pod zemí celé jedno patro, takže vyčnívá asi polovina objektu.
U těžkého objektu je to vlastně podobné, tam je pod zemí celé jedno patro, takže vyčnívá asi polovina objektu.
-
crusader_cz
- Nováček
- Příspěvky: 9
- Registrován: 17 dub 2019, 06:35
Re: Pevnostní objekty
Hezky je skořápka vidět na nakloněném objektu R2/32/A-180Z http://ropiky.net/dbase_objekt.php?id=1075726031, obrázek 4, 5 a 6 zdola. Hlavně na tom 6 obrázku je hezky vidět rozdíl mezi hladkým betonem rozpadlé skořápky a hrubším betonem podlahy řopíku.
-
QVAK
- Redaktor - závislák :-)
- Příspěvky: 11615
- Registrován: 07 úno 2017, 16:20
Re: Pevnostní objekty
Alchy, tak se začaly betonovat prvé lehké objekty protože to byla tehdy běžně používaná technologie betonování(francouzský způsob) a brzy se přešlo na lití dle ak. Bechyněho. Lehké objekty nestavěly specializované Fy. jako těžké(cca 6) ale lokální pod dohledem ŘOP. Díky těmto stavbám se plošně rozšířila tato technologie v celém stavebnictví(byla rychlejší a nepotřebovala tak bytelné šalunky). Důvodem pro technologickou změnu u výstavby lehkého opevnění byla vyšší odolnost staveb.Alchymista píše: ↑17 dub 2019, 10:03Nemáš to prehodené?
Na ČS opevnení sa podľa toho, čo som čítal, betonovalo len "zavlhnutou" betonovou zmesou, zmes sa do armatury "pechovala", a celý objekt, podkiaľ to šlo, sa betonoval naraz - takže väčšina bunkrov, okrem "najväčších", predstavuje betonový monoblok.
Suchý beton se zhutňuje asi tak jako např. zásyp výkopů nebo zpevňují parkovací místa aby se homogenizoval. Výborně se zapracují vodorovné armatury a potíž je se svislými protože síla od stroje působí většinově kolmo a nesmí se dotýkat armatury(uvolnil by ji). U litého se vibruje a tím se odstraňují bublinky z betonu. Vibrace působí od zdroje všemi směry tak výborně zapracuje jakoukoli armaturu. U litého se objevila jedna do tehdy neznámá vlastnost a to vyzařováním tepla během zrání. Byl to u pevností díky jejich objemu betonáže závažný problém. Dodnes ho nikdo nevyřešil a je limitující vlastností pro rychlost betonáže např. velkých přehrad.
P.S. Vždy se musí započít betonáž na desku jinak by beton chovající se jako tekutina vytékal z pod šalunku na podložku. Tlak je daný hustotou a množstvím betonu musí něco absorbovat.
-
BartH8
- Sponzor fóra
- Příspěvky: 659
- Registrován: 16 dub 2018, 18:16
Re: Pevnostní objekty
Sakra, za těch 6 cm u skořápky může nějaký šotek. Článek který sem postoval jsem přečetl jen zběžně a těch 6 cm se tam nikde nepíše. To je tak když někdo dělá něco takového v práci
tímto se omlouvám za mystifikaci.
Jinak ten článek co jsem postoval popisuje celkem přesně jakým způsobem probíhalo betonování těžkých objektů hutněním vlhkého betonu. Vzhledem k tomu že se jedná o článek z nějakého stavebně zaměřeného časopisu, nemám důvod mu nevěřit, QUAKu :razz:
Článek je hned první na předchozí stránce.
A všechny objekty, LO, TO, stavěli odborné firmy. Říká se jim stavební.
Normu a technologii určovala armáda. Firma se jí řídila. Jinak padaly pokuty. Dřív to nefungovalo jako teď. Kdy zakázku vyhraje někdo kdo pak hledá nějakou firmu co to realizuje a ještě po*ere :)
Jinak ten článek co jsem postoval popisuje celkem přesně jakým způsobem probíhalo betonování těžkých objektů hutněním vlhkého betonu. Vzhledem k tomu že se jedná o článek z nějakého stavebně zaměřeného časopisu, nemám důvod mu nevěřit, QUAKu :razz:
Článek je hned první na předchozí stránce.
A všechny objekty, LO, TO, stavěli odborné firmy. Říká se jim stavební.
Normu a technologii určovala armáda. Firma se jí řídila. Jinak padaly pokuty. Dřív to nefungovalo jako teď. Kdy zakázku vyhraje někdo kdo pak hledá nějakou firmu co to realizuje a ještě po*ere :)
Sláma u kravína,
herojom srala.
herojom srala.
-
QVAK
- Redaktor - závislák :-)
- Příspěvky: 11615
- Registrován: 07 úno 2017, 16:20
Re: Pevnostní objekty
Tak proč například měli Frantící velký problém s armováním a Češi nikoli když používali shodnou navíc jejich převzatou technologii? Nebo tak obrovský rozdíl mezi mechanickými vlastnostmi díla? Není to snad záměnou mezi hutněním a vibrací? Na prvý pohled laika obě technologie vypadají shodně a laik rozdíl v konzistenci betonu nepozná. Lití i vibrace byly až do 45 tajné. Pak by i Frantíci a Němci dokázali postavit stejný most jako Čecháčkové u Soutic resp. Bechyňský most Duha nebo obdobné funkční průmyslové budovy Radlická 10, Pragovky Vysočany a Zlína i všech Baťovan. Nebo paláce Lucerna. Vědomosti mám z biografie o ak. Bechyněm a z prvé zde vyšlé knihy o ČS opevnění.
TO bylo schopno postavit 6 Fy v republice. LO tehdejší středně velká stavební Fy. To znamená stavitel jako garant dodávky(a autorizovaná osoba ve vztahu k st. správě) který si najímal potřebné řemesla pomocí (zednických, dlaždičských, instalatérských, elektrikářských, kamenických, tesařských) mistrů kteří byli odbornými řemeslnými garanty a práci vykonali se svými lidmi(partami). Materiál zajišťoval stavitel a ručil i za jeho kvalitu. Za kvalitu odvedené práce ručili mistři řemesel. Vzdělání, stavitel min. vyšší průmyslovku a st. atestaci, mistr nižší prům a odbornou atestaci, řemeslníci vyučení+řemeslnou atestaci(tz. tovaryšskou zkoušku) a nádeníci bez odborného vzdělání. Vyučení byli kvalifikačně mezi nádeníkem a tovaryšem. Vyučení postačovalo na samostatné vykonávání řemesla jen ve fabrikách.
TO bylo schopno postavit 6 Fy v republice. LO tehdejší středně velká stavební Fy. To znamená stavitel jako garant dodávky(a autorizovaná osoba ve vztahu k st. správě) který si najímal potřebné řemesla pomocí (zednických, dlaždičských, instalatérských, elektrikářských, kamenických, tesařských) mistrů kteří byli odbornými řemeslnými garanty a práci vykonali se svými lidmi(partami). Materiál zajišťoval stavitel a ručil i za jeho kvalitu. Za kvalitu odvedené práce ručili mistři řemesel. Vzdělání, stavitel min. vyšší průmyslovku a st. atestaci, mistr nižší prům a odbornou atestaci, řemeslníci vyučení+řemeslnou atestaci(tz. tovaryšskou zkoušku) a nádeníci bez odborného vzdělání. Vyučení byli kvalifikačně mezi nádeníkem a tovaryšem. Vyučení postačovalo na samostatné vykonávání řemesla jen ve fabrikách.
-
modrak
- Senior redaktor
- Příspěvky: 3873
- Registrován: 22 úno 2017, 16:50
Re: Pevnostní objekty
Pri stavbe z betónu je veľa premenných. A u železobetónu zvlášť. Čo sa týka betonárskych prác 1. v oboru sú Taliani. Vibrácie, liatie neboli tajné, poznali ich už starý Rimania.
Frantíci aj Nemci + x ďalších postavili také mosty, objekty a iné stavby, proti ktorým Duha a všetko ostatné čo popisuješ sú iba "prkotiny". Je potreba si uvedomiť, že technologický postup stavby sa odvíja od projektov, požiadavok a tech. úrovne. V podstate stačí porovnať "starý západný val" alebo "novú stalinovu líniu" s čs. opevnením.Môžme ich kľudne označiť za šlendrián. Ale také bolo zadanie. A podľa toho sa vyberala technológia, materiáli atď. Stavalo sa čo najrýchlejšie, najlacnejšie, najefektívnejšie. Žiadne z týchto pevností nebolí stavené aby rozhodli vojnu. Ani čs. opevnenia. Len čas, ktorý mali vydržať bol rôzny. Zatiaľčo u Francúzov, Rusov atď. malo ísť o boj radovo v týždňoch, u čs. opevnení mesiacoch - do príchodu spojencov. Preto aj sa stavali opevnenia v ČSR kvalitnejšie, drahšie, prepracovanejšie atď.
-
Alchymista
- Redakční rada
- Příspěvky: 54987
- Registrován: 01 úno 2017, 08:58
Re: Pevnostní objekty
Qvak - aj ostatní - vďaka za upresnenie.
COVID-19 nie je choroba, COVID-19 je globálny test inteligencie jedincov, spoločenstiev, národov a štátov.
Dinosauri sa venovali výhradne problémom vlastného rastu.
Dinosauri sa venovali výhradne problémom vlastného rastu.